Cleaning Procedure
Zeta House requires cleaning for common areas and bedrooms. Use the following property plans to understand the floor layout and rooms.
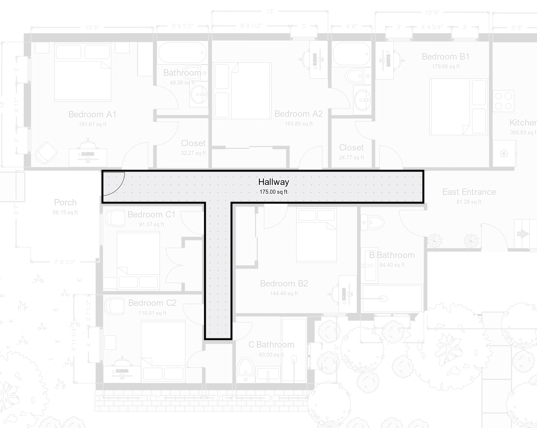
View Property Plans: https://cloud.magicplan.app/plan/fb0fc5b7-0b42-4cb9-9ae6-3d2d6a120b9b
Common Area Cleaning - Scheduled once a Month
Once a month, the common areas require a clean:
- Hallway
- East Entrance
- Kitchen/Dining Room
- B Bathroom
- C Bathroom
- Deck
- Office
- Desks Area
- Lounge Area
- Conference Area
- Cleaning Robot Ground Floor
- Cleaning Robot Office
Estimated time is based on 1 person with all equipment available without any extreme dirtiness.
In the case of extreme dirtiniess, provide evidence and it will be paid extra on a per-30 minute basis.
Notes on equipment:
- Use the bucket with clean water to wash the Spray Mop. Use the backup Mop if the existing Mop is being cleand.
- Fill the Spray Mop bottle with just clean water without any detergent.
- Acquire equipment from storage specified below.
- Report on any lack of consumable inventory e.g. toilet paper.
Payment and Time Expectations
- Base Cleaning Cost: $200 USD
- Extreme Dirtiness:
- If any common area requires additional time due to extreme dirtiness, document the condition with clear, timestamped photos before starting the cleaning.
- Additional cleaning time will be compensated at $25 USD per hour.
- Ensure all extra cleaning time is logged and communicated for approval.
- Expected Time: 6 hours as 1 person with all equipment.
Hallway

Required Equipment:
- Portable Vacuum
- Spray Mop
- Bucket
- Magic Eraser
- Rubbish Bag
Steps:
- Prepare the Area:
- Ensure the hallway is clear of any obstacles or loose items.
- Vacuum the Floor:
- Use the portable vacuum to thoroughly clean the hardwood floor.
- Remove any visible debris and ensure all edges and corners are addressed.
- Mop the Floor:
- Mop the entire hallway, ensuring even coverage and removal of dirt and stains.
- Clean the Walls:
- Inspect the walls for any visible smudges or marks.
- Use a magic eraser to gently remove smudges without damaging the paint or surface.
- Dispose of Rubbish:
- Collect any rubbish found during cleaning and place it into a rubbish bag.
Estimated Time: 10 minutes
East Entrance

Required Equipment:
- Portable Vacuum
- Spray Mop
- Bucket
- Magic Eraser
- Rubbish Bag
Steps:
- Prepare the Area:
- Move all shoes to the designated shoe rack.
- Remove any visible rubbish or clutter from the area.
- Vacuum the Floor:
- Use the portable vacuum to clean the hardwood floor, focusing on high-traffic areas and corners.
- Mop the Floor:
- Fill the spray mop with a suitable cleaning solution.
- Mop the entire floor to remove dirt and stains caused by foot traffic.
- Clean the Walls and Door:
- Inspect walls and the door for smudges or marks.
- Use a magic eraser to clean these areas, paying special attention to spots near the entrance.
- Dispose of Rubbish:
- Collect any rubbish found during cleaning and place it into a rubbish bag.
Estimated Time: 10 minutes
C Bathroom

Required Equipment:
- Portable Vacuum
- Spray Mop
- Bucket
- Magic Eraser
- Cleaning Spray
- Disposable Cloth Wipes
- Bleach Tablets
- Drainol
- Bathroom Mat
- Toilet Paper
- Small Rubbish Bag
- Hand Sanitizer
- Hand Soap
Steps:
-
Dispose of Rubbish:
-
Empty the bathroom rubbish bin and replace the liner with a new plastic bag.
-
-
Clean the mirror:
- Wipe the mirror using the cleaning spray and disposable cloths.
-
Clean the Sink and Cupboards:
- Move resident's items aside until it is clean.
- Wipe down the sink and cupboard handles using cleaning spray and disposable cloth wipes.
- Wipe down the hair dryer using cleaning spray and disposable cloth wipes.
- Remove any rubbish in the cupboards.
-
Clean the Shower:
- Spray and wipe down the shower area, removing any hair and disposing of it into the toilet.
- Wipe handles using cleaning spray and disposable cloth.
- Wipe the bathroom windows using cleaning spray and disposable cloth.
- Pour a cup of drainol down the drain.
-
Clean the Toilet:
-
Wipe down the toilet with cleaning spray and disposable cloth wipes.
-
Place a bleach tablet into the cistern.
-
-
Clean the Bathroom Mat:
- Take the bathroom mat and place it into the washing machine or queue it for washing.
- Replace the bathroom mat with the spare dry one.
-
Restock toilet rolls:
-
Dispose old toilet rolls that no longer have any paper.
-
Ensure there is 11 toilet rolls in the cabinet under the sink.
-
Ensure 1 usable roll is on the toilet roll holder, you can leave it as is if the toilet roll has 10% capacity.
-
-
Restock Hand Sanitizer and Hand Soap. Leave them as is if they have 20% capacity.
-
Clean the Floor:
- Vacuum and mop the bathroom floor thoroughly.
-
Wall Cleaning:
- Inspect for wall smudges and a magic eraser to clean them.
- Ensure windows are closed.
- Close and lock the windows avoid security breaches.
- Ventilate the room
- Switch on the ventilation to avoid bleach smells.
- Leave the door open.
Estimated Time: 45 minutes
B Bathroom

Required Equipment:
- Portable Vacuum
- Spray Mop
- Bucket
- Magic Eraser
- Cleaning Spray
- Disposable Cloth Wipes
- Bleach Tablets
- Drainol
- Garden Hose
- Bathroom Mat
- Toilet Paper
- Small Rubbish Bag
Steps:
-
Dispose of Rubbish:
-
Empty the bathroom rubbish bin and replace the liner with a new plastic bag.
-
-
Clean the mirror:
- Wipe the mirror using the cleaning spray and disposable cloths.
-
Clean the Sink and Cupboards:
- Move resident's items aside until it is clean.
- Wipe down the sink and cupboard handles using cleaning spray and disposable cloth wipes.
- Wipe down the hair dryer using cleaning spray and disposable cloth wipes.
- Remove any rubbish in the cupboards.
-
Clean the Shower:
- Spray and wipe down the shower area, removing any hair and disposing of it into the toilet.
- Use the garden hose to spray down the walls and windows, attach the hose from the outside tap next to the East Entrance.
- Wipe handles using cleaning spray and disposable cloth.
- Wipe the bathroom windows using cleaning spray and disposable cloth.
- Pour a cup of drainol down the drain.
-
Clean the Toilet:
-
Wipe down the toilet with cleaning spray and disposable cloth wipes.
-
Place a bleach tablet into the cistern.
-
-
Clean the Bathroom Mat:
- Take the bathroom mat and place it into the washing machine or queue it for washing.
- Replace the bathroom mat with the spare dry one.
-
Restock toilet rolls:
-
Dispose old toilet rolls that no longer have any paper.
-
Ensure there is 11 toilet rolls in the cabinet under the sink.
-
Ensure 1 usable roll is on the toilet roll holder, you can leave it as is if the toilet roll has 10% capacity.
-
-
Restock Hand Sanitizer and Hand Soap. Leave them as is if they have 20% capacity.
-
Clean the Floor:
- Vacuum and mop the bathroom floor thoroughly.
-
Wall Cleaning:
- Inspect for wall smudges and a magic eraser to clean them.
- Ensure windows are closed.
- Close and lock the windows avoid security breaches.
- Ventilate the room
- Switch on the ventilation to avoid bleach smells.
- Leave the door open.
Estimated Time: 45 minutes
Office

Required Equipment:
- Portable Vacuum
- Spray Mop
- Bucket
- Magic Eraser
- Cleaning Spray
- Reusable Cloth Wipes
Steps:
- Prepare the Area:
- Remove any visible rubbish or clutter from the area.
- Clean the Stairs:
- Vacuum and mop the stairs thoroughly to remove dust and dirt.
- Clean the Hardwood Floor:
- Vacuum and mop the hardwood floor in the office, ensuring all corners and edges are addressed.
- Clean the Lounge Area:
- Move the furniture off the jute rug.
- Vacuum the jute rug thoroughly.
- Wipe down the lounge furniture to remove stains or dust.
- Organize the lounge
- Ensure that chess board is on top of the wooden pouf
- Arrange books and games
- Dust the shelves
- Clean the Desks:
- Wipe down each unoccupied desk using cleaning spray and reusable cloth wipes.
- For occupied desks, carefully wipe around items without disturbing their arrangement.
- Collect any cups, plates, or mugs and take them to the kitchen for cleaning.
- Clean the Conference Area:
- Wipe down the TV screen using a dry reusable cloth.
- Clean the cabinet exterior with cleaning spray and reusable cloth wipes.
- Wall Scuff and Chair Base Scuff Cleaning:
- Inspect for smudges on the walls and clean them using a magic eraser.
- Take note that underneath each desk, residents may have created scuff marks on the wall. Clean the scuff marks with a magic eraser.
- Use the magic eraser to clean the white chair base for unoccupied chairs.
- Raise the desks to make it easier clean the walls. Becareful on the edges!
- Arrange desks and chairs.
- Move desks around to ensure consistent gaps between each desk.
- Move 1 office chair back to each desk.
- Make sure that the south-side desks do not hit the attic handle when raising or lowering.
Estimated Time: 60 minutes
Kitchen/Dining Room

Required Equipment:
- Portable Vacuum
- Spray Mop
- Bucket
- Magic Eraser
- Rubbish Bag for Trash Bin
- Reusable Cloth Wipes
- Cleaning Spray
- Dishwashing Detergent
- Dishwashing Tablets
Steps:
-
Clean the Floors:
- Move chairs and furniture to access all corners.
- Vacuum and mop the hardwood floor, including the area under the stairs.
-
Wipe Surfaces:
- Clean countertops with cleaning spray and reusable cloth wipes.
- Clean sink using dish detergent and reusable cloth wipes.
- Wipe cupboard handles, fridge handles, and oven handles thoroughly.
- Reusable cloth wipes can left to dry, or put into the laundry if washing something else.
-
Clean Appliances:
-
Wipe the interior and exterior of the fridge and freezer to remove spills.
-
Wipe the interior and exterior of the microwave to remove stains.
-
Clean the stovetop and oven, ensuring all stains and grease are removed.
-
-
Dishwashing Tasks:
-
Unload the dishwasher if there are clean items, and store them in the appropriate cupboards.
- Plates
- Bowls
- Cups
- Knives
- Utensils
- Cookware
-
Place all used cups, bowls, and utensils into the dishwasher.
-
Put used oven trays into the dishwasher.
-
Use 1 of the dishwashing tablets.
-
Run it with heat-drying option - this will take 3 hrs.
-
-
Clean the Dining Area:
- Wipe down the kitchen table and chairs.
-
Laundry Dryer Maintenance:
- Remove lint from the dryer's lint trap and dispose of it in the rubbish.
- Check and clean the external lint trap outside.
-
Deck Doors:
- Vacuum and wipe the bottom sliding track of the deck doors to eliminate tracking friction.
-
Garbage and Recycling:
-
Dispose of garbage and recycling into the outdoor bins.
- Use the recycling bin on the south-side if the north-side recycling bin is full.
-
Rinse the kitchen bins and their lids using the outdoor tap next to the East Entrance to remove residual stains.
- Shake off any water.
-
Replace the garbage bin liner with a new plastic bag from under the sink.
-
Empty the portable vacuum container into the outside trash.
-
-
Wall Cleaning:
- Inspect for wall smudges and use kitchen wipes or a magic eraser to clean them.
Estimated Time: 70 minutes
Deck

If it is raining, you don't need to clean the deck.
Required Equipment:
- Garden Hose
- Cleaning Spray
- Disposable Cloth Wipes
- Portable Vacuum
- Rubbish Bag
Steps:
- Remove Debris:
- Use the garden hose to spray down the deck, removing leaves, dirt, and other debris.
- Focus on corners and hard-to-reach areas where debris tends to collect.
- Wipe Down Furniture:
- Wipe down the table, benches, and outdoor chairs with cleaning spray and disposable cloth wipes.
- Arrange Furniture:
- Arrange the 2 desks, ensuring they are evenly spaced.
- Place 6 outdoor chairs and 2 benches in their designated spots for optimal organization and usage.
- Dispose of Rubbish:
- Collect any rubbish found on the deck or left in the area and place it into a rubbish bag.
- Dispose of the rubbish in the designated outdoor bins.
Estimated Time: 20 minutes
Cleaning Robot Ground Floor

Required Equipment:
- Safety Knife
- Mop Scraper
- Screw Driver
- Robot Detergent
- Vacuum Bag
- Disposable Cloth Wipe
- Toothbrush
- Large Screw Driver (this may be needed)
- Cleaning Spray
Steps:
-
Prepare all equipment you need
-
Turn off the Robot and Shut the Clean Water Tap
- Press and hold the power button until it is off.
-
Clean the Dock
-
Detach the dock's front plate, and wash it in the sink.
-
Detach the circular mop cleaner and use the toothbrush and disposable cloth wipe to clean it off all debris.
-
Detach the drain cover and use the toothbrush and disposable cloth wipe to clean it.
-
Detach the main mop scrub and use toothbrush and disposable cloth wipe to clean off all debris.
-
Use cleaning spray disposable cloth wipe on the surface and interior of the dock.
-
Wash the circular mop cleaner, the drain cover, the scrub in the sink.
-
Reinstall the circular mop cleaner, the drain cover, the scrub nad the dock.
-
Monitor the Vacuum Bag for capacity
-
Replace the Vacuum Bag if it is full.
-
-
Clean the Robot
-
Use the B Bathroom Sink or the East Entrance Tap for Cleaning.
-
Flip over the robot and inspect the spinner, the circular mop, the main mop and the red and black roller brushes.
-
Use the screw drive to detach the spinning arm. Make sure to keep the screw safe.
-
Ensure all hair has been removed with the Safety Knife. Reattach the spinning arm onto the screwhole.
-
Extract the red and black roller brushes.
-
Clean the roller brushes underside, and also pull out the top and bottom pins of each roller brush and use the safety knife to cut out the hair.
-
Reattach all pins to the correct roller brush, and reattach the roller brushes to the robot and secure it.
-
Remove the mop cloth by sliding it out.
-
Use the mop scraper and toothbrush and cleaning spray to clean the mop.
-
Use the screw driver to detach the circular mop and clean it as well and reattach it.
-
Reattach the mop after cleaning, it should be rinsed before reattaching.
-
Extract out the robot filter and clean it by opening it, and then heat dry it before putting it back. This only has to be done once every 6 months.
-
Wipe the exterior sensors of the robot.
-
Refill Cleaning Liquid
-
Put the robot back into the dock. Turn on the Robot and Open the Clean Water Tap.
- Press and hold the power button until it is on.
- Press the home button it will navigate back to the dock automatically.
- Wipe off ground around the robot dock as it may be dirty
Estimated Time: 45 minutes
Cleaning Robot Office
TBD.
Estimated Time: 45 minutes
Bedroom Cleaning - Ad-Hoc
When a resident moves out of a bedroom, the bedroom and associated bathroom requires a clean. This can occur on any date, and we require clean to be done within 2 days of the resident moving out, in some cases as early as within 1 day.
Lease end times will be sent to you ahead of time, however these may change within a week's notice.
Alternative arrangements must be provided by the cleaner if they cannot make it.
Bedrooms may be locked, if so, a room code will be supplied to you to open it. Leave the bedroom doors unlocked, do not lock them.
We have 6 bedrooms up for cleaning with monthly minimum stays. Our leases on average last 3 months. This means we expect a range of 12 to 36 bedroom cleaning sessions per year or 1 to 3 bedroom cleaning sessions per month.
Payment and Time Expectations
- Base Cleaning Cost: $60 USD for the first bedroom cleaned per session.
- Additional Bedrooms: $25 USD per additional bedroom cleaned during the same
session. For example:
- Cleaning 1 bedroom: $60 USD.
- Cleaning 2 bedrooms: $85 USD ($60 + $25).
- Cleaning 3 bedrooms: $110 USD ($60 + $25 + $25).
- Extreme Dirtiness:
- If the room requires additional time due to extreme dirtiness, document the condition with clear, timestamped photos before starting the cleaning.
- Additional cleaning time will be compensated at $25 USD per hour.
- Ensure all extra cleaning time is logged and communicated for approval.
A1
Required Equipment:
- Portable Vacuum
- Spray Mop
- Bucket
- Cleaning Spray
- Magic Eraser
- Duster
- Disposable Cloth Wipe
- Drainol
- Bleach Tablet
- Laundry Bag
- Sodium Percarbonate
- Laundry Detergent
- Washing Machine Balls
- King Size Bed Linen
- Pillowcases (2x)
- Pillow protectors (2x)
- Comforter (1x)
- Top sheet (1x)
- Fitted sheet (1x)
- Waterproof mattress protector (1x)
- Square pillowcase (1x)
- Bathroom Linen
- White Towel (1x)
- Colored Towel (1x)
- Bathroom Mat (1x)
- Shower Curtain (1x)
Washing Steps:
-
Remove and Wash Bedding and Linens:
-
Strip the bed of all linens.
-
Collect all bathroom linens (towels, mat, and shower curtain liner).
-
-
Prepare Laundry:
-
Place all linens and towels into a laundry bag and transfer to the washing machine.
-
Use 3 or 4 washing machine balls for white linen for separation.
-
Put in white linen first, comforter second in case of capacity contraints.
-
Set the washing machine to Bedding Mode with the following settings:
-
Pre-wash enabled.
-
Add high-efficiency detergent to the main wash section and sodium percarbonate to the pre-wash section.
-
-
If another load is already running, queue the laundry in the designated area.
-
Notify the community manager that A1 laundry is either washing or drying. No need to wait for the cycle to finish.
-
-
Replace with Fresh Linens:
-
Retrieve a new linen set from CB storage and make the bed with:
-
Waterproof Mattress Protector
-
Fitted Sheet
-
Top Sheet
-
Comforter
-
Pillow Protectors
-
Pillowcases
-
Square Pillowcase
-
-
Fluff pillows to ensure a neat and symmetrical appearance.
-
Fold a white towel and coloured towel and place onto bed.
-
Cleaning Steps:
-
Dust and Clean Surfaces:
-
Use a duster to clean the ceiling fan.
-
Wipe down the desk, desk chair, lounge chair, dresser and nightstands with cleaning spray and disposable cloth wipes.
-
Open nightstand drawers to remove rubbish. Ensure only 2 power adapters and wooden stakes remain. Plug in the stakes if necessary.
-
Open dresser drawers and remove all rubbish. Ensure each drawer contains the wooden stakes to be plugged in.
-
-
Clean the Closet Area:
- Vacuum and mop the closet floor.
- Remove all rubbish from the closet.
- Arrange hangers; only black hangers should remain. Remove all non-black hangers.
-
Clean the Bathroom:
-
Vacuum and mop the bathroom floor.
-
Wipe the sink, taps, and shower area with cleaning spray and disposable cloth wipes.
-
Empty drawers of rubbish, leaving only a blow dryer and toilet paper.
-
Wipe the blow dryer and replace the toilet roll if needed.
-
Restock toilet rolls:
-
Dispose old toilet rolls that no longer have any paper.
-
Ensure there is 5 rolls in the cabinet under the sink.
-
Ensure 1 usable roll is on the toilet roll holder, you can leave it as is if the toilet roll has 10% capacity.
-
-
Restock Hand Sanitizer and Hand Soap. Leave them as is if they have 20% capacity.
-
Clean the shower, removing stains and wiping taps and handles.
-
Place a bleach tablet in the toilet cistern.
-
Pour a small amount of Drainol into the shower drain.
-
Rinse the toilet bowl cleaner under the shower water; replace it if too dirty.
-
Turn on the bathroom fan for ventilation.
-
-
Floor Cleaning:
- Vacuum and mop all hardwood floors in the bedroom and closet.
- Use a magic eraser to remove wall stains, especially near the desk.
-
Tidy and Arrange:
-
Dispose of all rubbish and recycling in the appropriate bins.
-
Water the self-watering plant from the back side until the reservoir is full.
-
Place the plant on the nearest nightstand and plug it in. Ensure the light is set to white. Set the hourly timer to 9 hours.
-
Final Check:
-
Verify all furniture and fixtures are clean and arranged properly.
-
Lock windows securely.
-
Bring down all curtains.
-
Take clear photos of the cleaned room, closet, and bathroom.
-
Send the photos to the community manager.
-
Leave the bedroom door open.
Estimated Time: 1 hour.
A2
Required Equipment:
- Portable Vacuum
- Spray Mop
- Bucket
- Cleaning Spray
- Magic Eraser
- Duster
- Disposable Cloth Wipe
- Drainol
- Bleach Tablet
- Laundry Bag
- Sodium Percarbonate
- Laundry Detergent
- Washing Machine Balls
- Queen Size Bed Linen
- Pillowcases (2x)
- Pillow protectors (2x)
- Comforter (1x)
- Top sheet (1x)
- Fitted sheet (1x)
- Waterproof mattress protector (1x)
- Square pillowcase (1x)
- Bathroom Linen
- White Towel (1x)
- Colored Towel (1x)
- Bathroom Mat (1x)
- Shower Curtain (1x)
Washing Steps:
-
Remove and Wash Bedding and Linens:
-
Strip the bed of all linens.
-
Collect all bathroom linens (towels, mat, and shower curtain liner).
-
-
Prepare Laundry:
-
Place all linens and towels into a laundry bag and transfer to the washing machine.
-
Use 3 or 4 washing machine balls for white linen for separation.
-
Put in white linen first, comforter second in case of capacity contraints.
-
Set the washing machine to Bedding Mode with the following settings:
-
Pre-wash enabled.
-
Add high-efficiency detergent to the main wash section and sodium percarbonate to the pre-wash section.
-
-
If another load is already running, queue the laundry in the designated area.
-
Notify the community manager that A2 laundry is either washing or drying. No need to wait for the cycle to finish.
-
-
Replace with Fresh Linens:
-
Retrieve a new linen set from CB storage and make the bed with:
-
Waterproof Mattress Protector
-
Fitted Sheet
-
Top Sheet
-
Comforter
-
Pillow Protectors
-
Pillowcases
-
Square Pillowcase
-
-
Fluff pillows to ensure a neat and symmetrical appearance.
-
Fold a white towel and coloured towel and place onto bed.
-
Cleaning Steps:
-
Dust and Clean Surfaces:
-
Use a duster to clean the ceiling fan.
-
Wipe down the desk, desk chair, lounge chair, and nightstands with cleaning spray and disposable cloth wipes.
-
Open nightstand drawers to remove rubbish. Ensure only 2 power adapters and wooden stakes remain. Plug in the stakes if necessary.
-
-
Clean the Closet Area:
- Vacuum and mop the closet floor.
- Remove all rubbish from the closet.
- Arrange hangers; only black hangers should remain. Remove all non-black hangers.
-
Clean the Bathroom:
-
Vacuum and mop the bathroom floor.
-
Wipe the sink, taps, and shower area with cleaning spray and disposable cloth wipes.
-
Empty drawers of rubbish, leaving only a blow dryer and toilet paper.
-
Wipe the blow dryer and replace the toilet roll if needed.
-
Restock toilet rolls:
-
Dispose old toilet rolls that no longer have any paper.
-
Ensure there is 5 rolls in the cabinet under the sink.
-
Ensure 1 usable roll is on the toilet roll holder, you can leave it as is if the toilet roll has 10% capacity.
-
-
Restock Hand Sanitizer and Hand Soap. Leave them as is if they have 20% capacity.
-
Clean the shower, removing stains and wiping taps and handles.
-
Place a bleach tablet in the toilet cistern.
-
Pour a small amount of Drainol into the shower drain.
-
Rinse the toilet bowl cleaner under the shower water; replace it if too dirty.
-
Turn on the bathroom fan for ventilation.
-
-
Floor Cleaning:
- Vacuum and mop all hardwood floors in the bedroom and closet.
- Use a magic eraser to remove wall stains, especially near the desk.
-
Tidy and Arrange:
-
Dispose of all rubbish and recycling in the appropriate bins.
-
Water the self-watering plant from the back side until the reservoir is full.
-
Place the plant on the nearest nightstand and plug it in. Ensure the light is set to white. Set the hourly timer to 9 hours.
-
Final Check:
-
Verify all furniture and fixtures are clean and arranged properly.
-
Lock windows securely.
-
Bring down all curtains.
-
Take clear photos of the cleaned room, closet, and bathroom.
-
Send the photos to the community manager.
-
Leave the bedroom door open.
Estimated Time: 1 hour.
B1 and B Bathroom
Required Equipment:
- Portable Vacuum
- Spray Mop
- Bucket
- Cleaning Spray
- Magic Eraser
- Disposable Cloth Wipe
- Drainol
- Bleach Tablet
- Laundry Bag
- Sodium Percarbonate
- Laundry Detergent
- Washing Machine Balls
- Queen Size Bed Linen:
- Pillowcases (2x)
- Pillow Protectors (2x)
- Comforter (1x)
- Top Sheet (1x)
- Fitted Sheet (1x)
- Waterproof Mattress Protector (1x)
- Square Pillowcase (1x)
- Bathroom Linen:
- White Towel (1x)
- Colored Towel (1x)
- Bathroom Mat (1x)
- Shower Curtain (1x)
Washing Steps:
-
Remove and Wash Bedding and Linens:
- Strip the bed of all linens.
- Collect all bathroom linens (towels, mat).
-
Prepare Laundry:
-
Place all linens and towels into a laundry bag and transfer to the washing machine.
-
Use 3 or 4 washing machine balls for white linen for separation.
-
Put in white linen first, comforter second in case of capacity contraints.
-
Set the washing machine to Bedding Mode with the following settings:
-
Pre-wash enabled.
-
Add high-efficiency detergent to the main wash section and sodium percarbonate to the pre-wash section.
-
-
If another load is already running, queue the laundry in the designated area.
-
Notify the community manager that B1 laundry is either washing or drying. No need to wait for the cycle to finish.
-
-
Replace with Fresh Linen:
-
Retrieve a new linen set from CB storage and make the bed with:
-
Waterproof Mattress Protector
-
Fitted Sheet
-
Top Sheet
-
Comforter
-
Pillow Protectors
-
Pillowcases
-
Square Pillowcase
-
-
Fluff pillows to ensure a neat and symmetrical appearance.
-
Fold a white towel and coloured towel and place onto bed.
-
Cleaning Steps:
-
Dust and Clean Surfaces:
-
Use a duster to clean the ceiling fan.
-
Wipe down the desk, desk chair, lounge chair, and nightstands with cleaning spray and disposable cloth wipes.
-
Open nightstand drawers to remove rubbish. Ensure each drawer contains only 2 power adapters and wooden stakes. Plug in the stakes if necessary.
-
-
Clean the Closet Area:
- Vacuum and mop the closet floor.
- Remove all rubbish from the closet.
- Arrange hangers; only black hangers should remain. Remove all non-black hangers.
-
Floor Cleaning:
- Vacuum and mop all hardwood floors in the bedroom and closet.
- Use a magic eraser to remove wall stains, especially near the desk.
-
Tidy and Arrange:
-
Dispose of all rubbish and recycling in the appropriate bins.
-
Water the self-watering plant from the back side until the reservoir is full.
-
Place the plant on the nearest nightstand and plug it in. Ensure the light is set to white. Set the hourly timer to 9 hours.
-
B Bathroom Cleaning Steps:
-
Dust and Clean Surfaces:
-
Dispose of rubbish in bathroom bin and put in a new small rubbish bag.
-
Vacuum and mop the bathroom floor.
-
Wipe down the sink, taps, and shower area with cleaning spray and disposable cloth wipes.
-
Empty drawers of rubbish, leaving only a blow dryer and toilet paper.
-
Wipe the blow dryer and replace the toilet roll if needed.
-
-
Restock Supplies:
-
Ensure there are 11 toilet rolls in the drawer using CB storage supplies.
-
Ensure there is 1 toilet roll on the holder.
-
Restock Hand Sanitizer and Hand Soap. Leave them as is if they have 20% capacity.
-
-
Clean the Shower and Toilet:
-
Wipe the shower tub, taps, and handles.
-
Place a bleach tablet in the toilet cistern.
-
Pour a small amount of Drainol into the shower drain.
-
Rinse the toilet bowl cleaner under the shower water; replace it if too dirty.
-
-
Ventilation and Final Touches:
-
Turn on the bathroom fan for ventilation.
-
Final Check:
-
Ensure all furniture and fixtures in the bedroom and bathroom are clean and properly arranged.
-
Lock windows securely.
-
Bring down all curtains.
-
Take clear photos of the cleaned room, closet, and bathroom.
-
Send the photos to the community manager.
-
Leave the bedroom door open.
Estimated Time: 1 hour.
B2 and B Bathroom
Required Equipment:
- Portable Vacuum
- Spray Mop
- Bucket
- Cleaning Spray
- Magic Eraser
- Disposable Cloth Wipe
- Drainol
- Bleach Tablet
- Laundry Bag
- Sodium Percarbonate
- Laundry Detergent
- Washing Machine Balls
- Queen Size Bed Linen:
- Pillowcases (2x)
- Pillow Protectors (2x)
- Comforter (1x)
- Top Sheet (1x)
- Fitted Sheet (1x)
- Waterproof Mattress Protector (1x)
- Square Pillowcase (1x)
- Bathroom Linen:
- White Towel (1x)
- Colored Towel (1x)
- Bathroom Mat (1x)
- Shower Curtain (1x)
Washing Steps:
-
Remove and Wash Bedding and Linens:
- Strip the bed of all linens.
- Collect all bathroom linens (towels, mat).
-
Prepare Laundry:
-
Place all linens and towels into a laundry bag and transfer to the washing machine.
-
Use 3 or 4 washing machine balls for white linen for separation.
-
Put in white linen first, comforter second in case of capacity contraints.
-
Set the washing machine to Bedding Mode with the following settings:
-
Pre-wash enabled.
-
Add high-efficiency detergent to the main wash section and sodium percarbonate to the pre-wash section.
-
-
If another load is already running, queue the laundry in the designated area.
-
Notify the community manager that B2 laundry is either washing or drying. No need to wait for the cycle to finish.
-
-
Replace with Fresh Linen:
-
Retrieve a new linen set from CB storage and make the bed with:
-
Waterproof Mattress Protector
-
Fitted Sheet
-
Top Sheet
-
Comforter
-
Pillow Protectors
-
Pillowcases
-
Square Pillowcase
-
-
Fluff pillows to ensure a neat and symmetrical appearance.
-
Fold a white towel and coloured towel and place onto bed.
-
Cleaning Steps:
-
Dust and Clean Surfaces:
-
Use a duster to clean the ceiling fan.
-
Wipe down the desk, desk chair, lounge chair, and nightstands with cleaning spray and disposable cloth wipes.
-
Open nightstand drawers to remove rubbish. Ensure each drawer contains only 2 power adapters and wooden stakes. Plug in the stakes if necessary.
-
-
Clean the Closet Area:
- Vacuum and mop the closet floor.
- Remove all rubbish from the closet.
- Arrange hangers; only black hangers should remain. Remove all non-black hangers.
-
Floor Cleaning:
- Vacuum and mop all hardwood floors in the bedroom and closet.
- Use a magic eraser to remove wall stains, especially near the desk.
-
Tidy and Arrange:
-
Dispose of all rubbish and recycling in the appropriate bins.
-
Water the self-watering plant from the back side until the reservoir is full.
-
Place the plant on the nearest nightstand and plug it in. Ensure the light is set to white. Set the hourly timer to 9 hours.
-
B Bathroom Cleaning Steps:
-
Dust and Clean Surfaces:
-
Dispose of rubbish in bathroom bin and put in a new small rubbish bag.
-
Vacuum and mop the bathroom floor.
-
Wipe down the sink, taps, and shower area with cleaning spray and disposable cloth wipes.
-
Empty drawers of rubbish, leaving only a blow dryer and toilet paper.
-
Wipe the blow dryer and replace the toilet roll if needed.
-
-
Restock Supplies:
-
Ensure there are 11 toilet rolls in the drawer using CB storage supplies.
-
Ensure there is 1 toilet roll on the holder.
-
Restock Hand Sanitizer and Hand Soap. Leave them as is if they have 20% capacity.
-
-
Clean the Shower and Toilet:
-
Wipe the shower tub, taps, and handles.
-
Place a bleach tablet in the toilet cistern.
-
Pour a small amount of Drainol into the shower drain.
-
Rinse the toilet bowl cleaner under the shower water; replace it if too dirty.
-
-
Ventilation and Final Touches:
-
Turn on the bathroom fan for ventilation.
-
Final Check:
-
Ensure all furniture and fixtures in the bedroom and bathroom are clean and properly arranged.
-
Lock windows securely.
-
Bring down all curtains.
-
Take clear photos of the cleaned room, closet, and bathroom.
-
Send the photos to the community manager.
-
Leave the bedroom door open.
Estimated Time: 1 hour.
C1 and C Bathroom
Required Equipment:
- Portable Vacuum
- Spray Mop
- Bucket
- Cleaning Spray
- Magic Eraser
- Disposable Cloth Wipe
- Drainol
- Bleach Tablet
- Laundry Bag
- Sodium Percarbonate
- Laundry Detergent
- Washing Machine Balls
- Small Rubbish Bag
- Full Size Bed Linen:
- Pillowcases (2x)
- Pillow Protectors (2x)
- Comforter (1x)
- Top Sheet (1x)
- Fitted Sheet (1x)
- Waterproof Mattress Protector (1x)
- Square Pillowcase (1x)
- Bathroom Linen:
- White Towel (1x)
- Colored Towel (1x)
- Bathroom Mat (1x)
- Shower Curtain (1x)
Washing Steps:
-
Remove and Wash Bedding and Linens:
- Strip the bed of all linens.
- Collect all bathroom linens (towels, mat).
-
Prepare Laundry:
-
Place all linens and towels into a laundry bag and transfer to the washing machine.
-
Use 3 or 4 washing machine balls for white linen for separation.
-
Put in white linen first, comforter second in case of capacity contraints.
-
Set the washing machine to Bedding Mode with the following settings:
-
Pre-wash enabled.
-
Add high-efficiency detergent to the main wash section and sodium percarbonate to the pre-wash section.
-
-
If another load is already running, queue the laundry in the designated area.
-
Notify the community manager that C1 laundry is either washing or drying. No need to wait for the cycle to finish.
-
-
Replace with Fresh Linen:
-
Retrieve a new linen set from CB storage and make the bed with:
-
Waterproof Mattress Protector
-
Fitted Sheet
-
Top Sheet
-
Comforter
-
Pillow Protectors
-
Pillowcases
-
Square Pillowcase
-
-
Fluff pillows to ensure a neat and symmetrical appearance.
-
Fold a white towel and coloured towel and place onto bed.
-
Cleaning Steps:
-
Dust and Clean Surfaces:
-
Use a duster to clean the ceiling fan.
-
Wipe down the lounge chair, and nightstands with cleaning spray and disposable cloth wipes.
-
Open nightstand drawers to remove rubbish. Ensure each drawer contains only 2 power adapters and wooden stakes. Plug in the stakes if necessary.
-
-
Clean the Closet Area:
- Vacuum and mop the closet floor.
- Remove all rubbish from the closet.
- Arrange hangers; only black hangers should remain. Remove all non-black hangers.
- Clean the mirror with disposable mop and cleaning spray.
-
Floor Cleaning:
- Vacuum and mop all hardwood floors in the bedroom and closet.
- Use a magic eraser to remove wall stains, especially near the desk.
-
Tidy and Arrange:
-
Dispose of all rubbish and recycling in the appropriate bins.
-
Water the self-watering plant from the back side until the reservoir is full.
-
Place the plant on the nearest nightstand and plug it in. Ensure the light is set to white. Set the hourly timer to 9 hours.
-
C Bathroom Cleaning Steps:
-
Dust and Clean Surfaces:
-
Dispose of rubbish in bathroom bin and put in a new small rubbish bag.
-
Vacuum and mop the bathroom floor.
-
Wipe down the sink, taps, and shower area with cleaning spray and disposable cloth wipes.
-
Empty drawers of rubbish, leaving only a blow dryer and toilet paper.
-
Wipe the blow dryer and replace the toilet roll if needed.
-
-
Restock Supplies:
-
Ensure there are 11 toilet rolls in the drawer using CB storage supplies.
-
Ensure there is 1 toilet roll on the holder.
-
Restock Hand Sanitizer and Hand Soap. Leave them as is if they have 20% capacity.
-
-
Clean the Shower and Toilet:
-
Wipe the shower tub, taps, and handles.
-
Place a bleach tablet in the toilet cistern.
-
Pour a small amount of Drainol into the shower drain.
-
Rinse the toilet bowl cleaner under the shower water; replace it if too dirty.
-
-
Ventilation and Final Touches:
-
Turn on the bathroom fan for ventilation.
-
Final Check:
-
Ensure all furniture and fixtures in the bedroom and bathroom are clean and properly arranged.
-
Lock windows securely.
-
Bring down all curtains.
-
Take clear photos of the cleaned room, closet, and bathroom.
-
Send the photos to the community manager.
-
Leave the bedroom door open, use the door wedge.
Estimated Time: 1 hour.
C2 and C Bathroom
Required Equipment:
- Portable Vacuum
- Spray Mop
- Bucket
- Cleaning Spray
- Magic Eraser
- Disposable Cloth Wipe
- Drainol
- Bleach Tablet
- Laundry Bag
- Sodium Percarbonate
- Laundry Detergent
- Washing Machine Balls
- Small Rubbish Bag
- Full Size Bed Linen:
- Pillowcases (2x)
- Pillow Protectors (2x)
- Comforter (1x)
- Top Sheet (1x)
- Fitted Sheet (1x)
- Waterproof Mattress Protector (1x)
- Square Pillowcase (1x)
- Bathroom Linen:
- White Towel (1x)
- Colored Towel (1x)
- Bathroom Mat (1x)
- Shower Curtain (1x)
Washing Steps:
-
Remove and Wash Bedding and Linens:
- Strip the bed of all linens.
- Collect all bathroom linens (towels, mat).
-
Prepare Laundry:
-
Place all linens and towels into a laundry bag and transfer to the washing machine.
-
Use 3 or 4 washing machine balls for white linen for separation.
-
Put in white linen first, comforter second in case of capacity contraints.
-
Set the washing machine to Bedding Mode with the following settings:
-
Pre-wash enabled.
-
Add high-efficiency detergent to the main wash section and sodium percarbonate to the pre-wash section.
-
-
If another load is already running, queue the laundry in the designated area.
-
Notify the community manager that C2 laundry is either washing or drying. No need to wait for the cycle to finish.
-
-
Replace with Fresh Linen:
-
Retrieve a new linen set from CB storage and make the bed with:
-
Waterproof Mattress Protector
-
Fitted Sheet
-
Top Sheet
-
Comforter
-
Pillow Protectors
-
Pillowcases
-
Square Pillowcase
-
-
Fluff pillows to ensure a neat and symmetrical appearance.
-
Fold a white towel and coloured towel and place onto bed.
-
Cleaning Steps:
-
Dust and Clean Surfaces:
-
Use a duster to clean the ceiling fan.
-
Wipe down the desk, desk chair, lounge chair, and nightstands with cleaning spray and disposable cloth wipes.
-
Open nightstand drawers to remove rubbish. Ensure each drawer contains only 2 power adapters and wooden stakes. Plug in the stakes if necessary.
-
-
Clean the Closet Area:
- Vacuum and mop the closet floor.
- Remove all rubbish from the closet.
- Arrange hangers; only black hangers should remain. Remove all non-black hangers.
-
Floor Cleaning:
- Vacuum and mop all hardwood floors in the bedroom and closet.
- Use a magic eraser to remove wall stains, especially near the desk.
-
Tidy and Arrange:
-
Dispose of all rubbish and recycling in the appropriate bins.
-
Water the self-watering plant from the back side until the reservoir is full.
-
Place the plant on the nearest nightstand and plug it in. Ensure the light is set to white. Set the hourly timer to 9 hours.
-
C Bathroom Cleaning Steps:
-
Dust and Clean Surfaces:
-
Dispose of rubbish in bathroom bin and put in a new small rubbish bag.
-
Vacuum and mop the bathroom floor.
-
Wipe down the sink, taps, and shower area with cleaning spray and disposable cloth wipes.
-
Empty drawers of rubbish, leaving only a blow dryer and toilet paper.
-
Wipe the blow dryer and replace the toilet roll if needed.
-
-
Restock Supplies:
-
Ensure there are 11 toilet rolls in the drawer using CB storage supplies.
-
Ensure there is 1 toilet roll on the holder.
-
Restock Hand Sanitizer and Hand Soap. Leave them as is if they have 20% capacity.
-
-
Clean the Shower and Toilet:
-
Wipe the shower tub, taps, and handles.
-
Place a bleach tablet in the toilet cistern.
-
Pour a small amount of Drainol into the shower drain.
-
Rinse the toilet bowl cleaner under the shower water; replace it if too dirty.
-
-
Ventilation and Final Touches:
-
Turn on the bathroom fan for ventilation.
-
Final Check:
-
Ensure all furniture and fixtures in the bedroom and bathroom are clean and properly arranged.
-
Lock windows securely.
-
Bring down all curtains.
-
Take clear photos of the cleaned room, closet, and bathroom.
-
Send the photos to the community manager.
-
Leave the bedroom door open, use the door wedge.
Estimated Time: 1 hour.
Equipment and Consumables
Cleaning Tools
-
Portable Vacuum
-
Location: Kitchen Under Stairs
-
-
Spray Mop
- Location: C Bathroom Storage
-
Bucket
- Location: C Bathroom Storage
-
Duster
- Location: C Bathroom Storage
-
Magic Eraser
-
Location: C Bathroom Storage
-
-
Toilet Bowl Brushes
- Location: In each bathroom and C Bathroom Storage
-
Garden Hose
- Location: Outdoor Shed - Code is ZETA in phone numerals.
Cleaning Supplies
-
Cleaning Spray
-
Location: C Bathroom Storage
-
-
Drainol
-
Location: C Bathroom Storage
-
-
Bleach Tablets
-
Location: C Bathroom Storage
-
-
Disposable Cloth Wipes
- Location: Kitchen Under Sink Cabinet
-
Reusable Cloth Wipes
- Location: Kitchen Under Sink Cabinet
Laundry Supplies
-
Laundry Detergent
- Location: Kitchen Laundry Cabinet
-
Sodium Percarbonate
- Location: Kitchen Laundry Cabinet
-
Washing Machine Balls
-
Location: Kitchen Laundry Cabinet
-
-
Laundry Bag
- Location: In each bedroom
Linen and Bathroom Supplies
- Bed Linens
- Location: C Bathroom Storage
- Bathroom Linens
- Location: C Bathroom Storage
- Toilet Paper
- Location: C Bathroom Storage
- Hand Sanitizer
- Location: C Bathroom Storage
- Hand Soap
- Location: C Bathroom Storage
Robot Maintenance Supplies
-
Safety Knife
-
Location: C Bathroom Storage
-
-
Mop Scraper
-
Location: C Bathroom Storage
-
-
Screwdriver
-
Location: C Bathroom Storage
-
-
Toothbrush
-
Location: C Bathroom Storage
-
-
Robot Detergent
- Location: C Bathroom Storage
-
Vacuum Bags
-
Location: C Bathroom Storage
-
-
Gloves
-
Location: C Bathroom Storage
-
Rubbish Supplies
-
Rubbish Bag
-
Location: Kitchen Under Sink Cabinet
-
-
Small Rubbish Bag
-
Location: Kitchen Under Sink Cabinet
-
Dishwasher Supplies
-
Dishwashing Tablet
-
Location: Kitchen Under Sink Cabinet
-
-
Dishwashing Detergent
- Location: Kitchen Sink